Mamaia
2 bedrooms apartment with generous surfaces | ID:1753817

165,000 €
  • 3 rooms
  • 2 bedrooms
  • 2 bathrooms
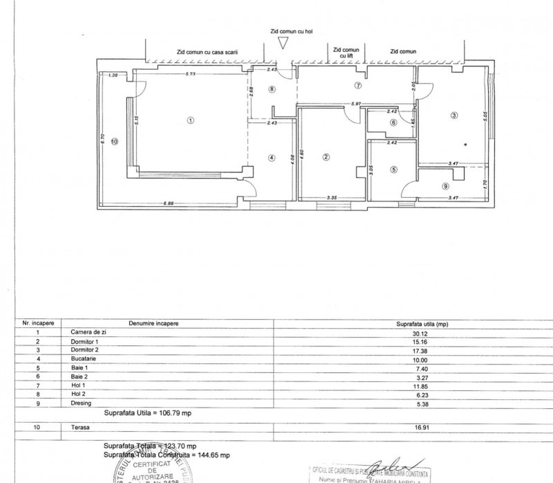
  • 144.65 sqm built
  • 123.7 sqm usable
  • 2 / GF+6E
  • 2008 finalized

Located in Mamaia, Summerland area, this 2 bedroom apartment is located on the 2nd floor of a GF+6 building, completed in 2008.
The total area is 144.65 sqm, 123.7 sqm usable (108.65 sqm + 17 sqm terrace) and consists of a very generous living room, about 30 sqm, with exit to the terrace overlooking the lake, open kitchen, fully equipped and furnished, master bedroom with dressing room and bathroom, secondary bedroom, and a secondary bathroom with shower.
The apartment is sold fully furnished, equipped.
Given the generous surface, panoramic view of the lake, location located 20 m from the access to the beach, this apartment is suitable for the residence of a family / holiday home.

Facilities

Air conditioning
Stove
Fridge
Jacuzzi
Washing machine
Fully furnished
Radiators
Central heating
Furnished kitchen
Equipped kitchen
Water meters
Heating meter
Electricity meter
Gas meter
Elevator
Service closet

Contact Agent

Costin Samara Real Estate Agent
Costin Samara
Branch Manager
0735...click...