Dorobanti
3-rooms apartment suitable for offices | ID:2569667

2,650 € / month
  • 3 rooms
  • 2 bedrooms
  • 2 bathrooms
  • 160 sqm built
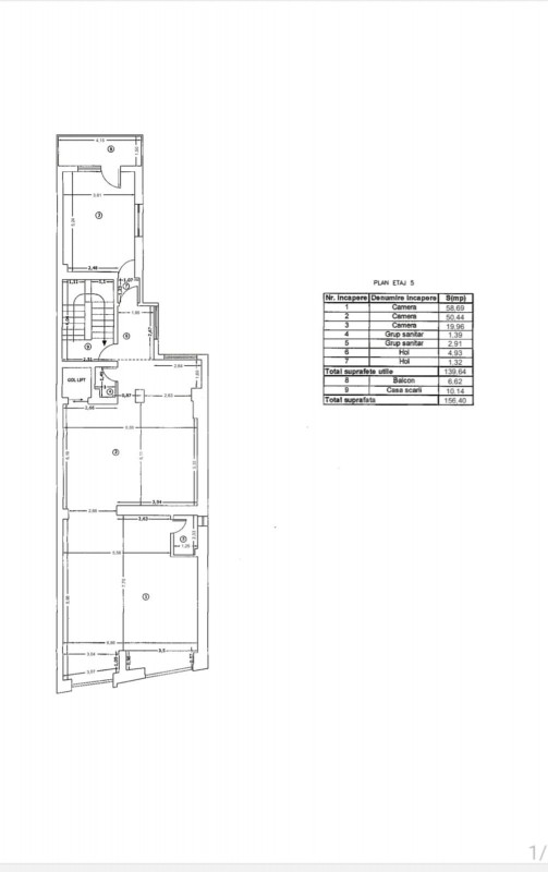
  • 140 sqm usable
  • 4 / 1UG+GF+5E
  • 2006 finalized

Located in Dorobanti area, a few minutes from Victoriei Square and Government, this 2 bedrooms apartment is on the 4nd floor of an Ug+Gf+5 building.
It has a total area of 160sqm of which 140sqm usable and 6sqm balcony.
It is composed of 3 spacious rooms, kitchenette, 2 bathrooms and balcony.
It has 24/7 security and includes 1 parking space.
Due to the close location to many points of interest and the facilities offered, it is suitable for offices.

Facilities

1 parking spots
Air conditioning
Partially furnished
Radiators
Central heating
Kitchenette
Water meters
Electricity meter
Gas meter
Elevator

Contact Agent

Alina Radulescu Real Estate Agent
Alina Radulescu
Senior Consultant
0733...click...