Herastrau
Duplex penthouse with 4 bedrooms, 3 baths | 244sqm | Panoramic View | ID:2780918

740,000 € + TVA
  • 5 rooms
  • 4 bedrooms
  • 3 bathrooms
  • 244 sqm built
  • 141 sqm usable
  • 6+7 / 2UG+GF+7E
  • 2021 finalized

A few steps from Herastrau Park, this impressive duplex penthouse is located on the last 2 levels of a modern residential building 2Ug+GF+7 completed in 2021. It benefits from a superb panoramic view of the park and over the entire area. It is sunny all day and is oriented southwest.
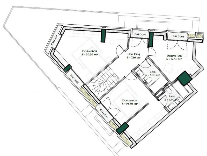
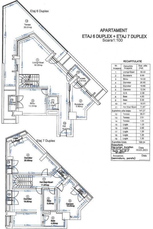
The total area is 244sqm of which 141sqm usable plus 40sqm terrace.
On the 6th floor there is a living area consisting of a very bright living room with dining area, office (it can be added to the living room resulting in 45sqm), large terrace of 40sqm, fully furnished and equipped kitchen, toilet and hallway with dressing.
On the 7th floor it has the master bedroom with its own bathroom and dressing room, plus 2 secondary bedrooms that share a bathroom with shower. Each room has a balcony.
The finishes are new, of very good quality (panoramic floor-to-ceiling aluminum windows, ventilated façade, underfloor heating with individual thermostats in each room, AC, triple layered parquet, modern ceramics, exterior electric blinds).
There are 2 parking spaces available in the basement for 30.000 euro+VAT/lot.
Given the location close to most of the points of interest and the generous space offered, it is suitable for a family residence.

Facilities

2 garages
Air conditioning
Stove
Shower
Bathtub
Dressing room
Fridge
Kitchen hood
Washing machine
Dishwasher
Staircase
TV
Partially furnished
Central heating
Underfloor heating
Open kitchen
Equipped kitchen
Water meters
Heating meter
Electricity meter
Elevator
Service closet

Contact Agent

Ionut Anghel Real Estate Agent
Ionut Anghel
Managing Partner
0720...click...