Kiseleff
Apartament premium cu 3 camere | zona linistita | 15mp terasa | ID:1480519

660,000 € + TVA
  • 3 camere
  • 2 dormitoare
  • 2 bai
  • 135 mp construiti
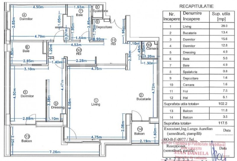
  • 102 mp utili
  • 2 / 2S+P+5E
  • 2021 finalizat

Amplasat in zona Kiseleff, la mica distanta de Parcul Herastrau si Kiseleff, acest apartament cu 3 camere se afla la etajul 2 al unui imobil 2S+P+5 finalizat in 2021.
Are o suprafata construita de 135mp dintre care 102mp utili plus 15mp terasa.
Este compus din living spatios cu zona de dining si iesire pe terasa, bucatarie inchisa si complet echipata, dormitor matrimonial cu baie proprie si zona de dressing, dormitor secundar si baie secundara.
Dispune de mobila moderna si finisaje de buna calitate.
Se pot achizitiona 1 loc de parcare subteran si 1 boxa la pretul de 30.000 euro+TVA.
Avand in vedere locatia si facilitatile oferite, este una din cele mai bune optiuni rezidentiale.

Facilitati

1 garaj
Bucătărie închisă
Bucătărie mobilată
Bucătărie utilată
Apometre
Contor electric
Aer condiționat
Aragaz
Cabină de duș
Cadă
Dressing
Frigider
Hotă
Mașină spălat rufe
Mașină spălat vase
TV
Mobilat complet
Mobilat lux
Centrală imobil
Încălzire pardoseală

Contact Agent

Ionut Anghel Agent Imobiliar
Ionut Anghel
Managing Partner
0720...click...