Pipera
Apartament penthouse cu 4 camere | finisaje premium | 2 garaje | ID:2724569

570,000 € + TVA
  • 4 camere
  • 3 dormitoare
  • 2 bai
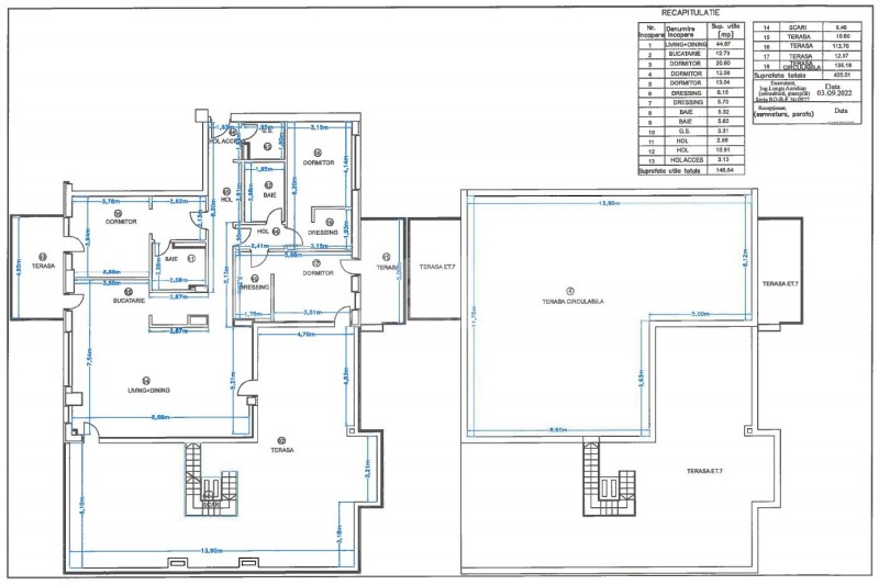
  • 425,01 mp construiti
  • 145,54 mp utili
  • 7 / 2S+P+7E
  • 2023 finalizat

Acest apartament pentrhouse cu 4 camere este situat in zona Pipera, langa Porche si supermarketul Kaufland, la etajul 7 al unui imobil 2S+P+7 finalizat in 2023.
Are o suprafata totala de 425mp, 145.5mp utili si 272mp terase.
Este compus din living spatios cu bucatarie deschisa si iesire pe o terasa de 114mp, dormitor matrimonial cu dressing si baie proprie si 2 dormitoare secundare care impart cea de-a 2-a baie.
Cele 2 locuri de parcare in garajul subteran pot fi cumparate separat pentru 20000Euro+tva/ loc.
Apartamentul beneficiaza de incalzire in pardoseala, A/C multisplit Mitsubishi, gresie Italia, parchet triplustratificat, etc.
Terasa de pe acoperis de 135mp ofera cadrul perfect pentru a crea un spatiu de relaxare, cu potential de instalare pentru bucatarie de vara si Jacuzzi.

Facilitati

2 garaje
Bucătărie deschisă
Bucătărie mobilată
Bucătărie utilată
Apometre
Contor electric
Contor gaz
Aer condiționat
Cabină de duș
Cadă
Nemobilat
Centrală proprie
Încălzire pardoseală

Contact Agent

Violeta Anghel Agent Imobiliar
Violeta Anghel
Department Manager
0724...click...