Aviatiei
Atlanta Residence | Apartament modern 2 camere | 72mpc | ID:2803426

200,000 € + TVA
  • 2 camere
  • 1 dormitoare
  • 1 bai
  • 72 mp construiti
  • 54 mp utili
  • 1 / 1S+P+2E
  • 2026 finalizat

Amplasat ideal in zona Aviatiei, in spatele hotelului Crystal Palace, la 950m de metrou Aurel Vlaicu - Promenada si 1500m de Parcul Herastrau, acest imobil boutique are 9 unitati rezidentiale desfasurate pe 3 nivele, S+P+2. Sunt doar 3 apartamente/nivel cu cate 2 si 4 camere.
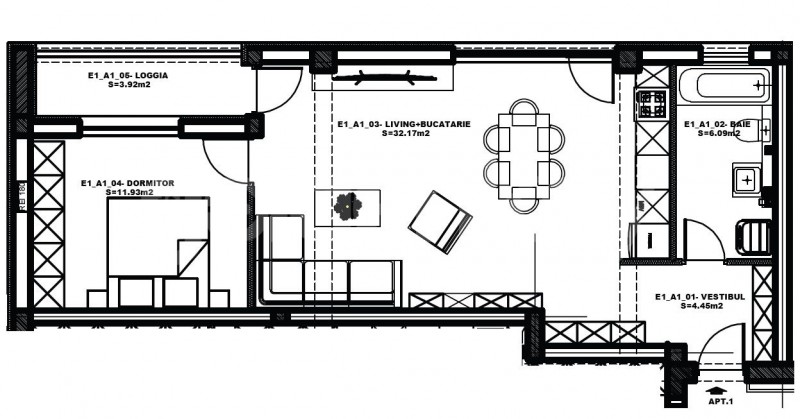
Suprafata totala este de 72mp construiti din care 54mp utili plus terasa 4mp.
Este compus din living cu zona de dining si bucatarie de 32mp, dormitor de 14mp cu zona de dressing si baie de 6mp.
Specificatii tehnice:
Structura este din beton armat cu umplutura din caramida Porotherm de 30cm, placa izolata termic si fonic, camerele compartimentate optim fara spatii pierdute cu suprafete vitrate mari. Izolatia termica este asigurata de sistemul complet de la Caparol, ferestrele sunt cu profile Salamander Green Evolution tripan, liftul este Klemann.
Fiecare unitate are utilitatile contorizate individual, imobilul avand centrala proprie si pompe de caldura.
Finisajele si dotarile sunt moderne si de buna calitate: parchet triplu stratificat, incalzire in pardoseala, ceramica de mari dimensiuni, obiecte sanitare Ideal Standard, usi Pinum, electrice Schneider.
Avantajele:
Locația foarte apropiata de metrou si de zona de birouri cea mai dezvoltata a orasului, proximitatea tuturor punctelor de interes la distanta de mers pe jos reprezinta principalul atu al acestui proiect. Compartimentarile inteligente, camerele înalte, numărul redus de unități, instalațiile si finisajele moderne sunt de asemenea doar cateva din motivele pentru care sa alegi Atlanta Residence.
Note:
*Pret valabil pentru avans 50%
*Imaginile sunt cu titlul de prezentare
*Specificatiile prezentate mai sus se pot modifica in functie de disponibilitatea lor la furnizori, indrumarea arhitectului sau schimbarea standardelor de conformitate nationale sau la nivelul Uniunii Europene.
*Pot fi folosite brand-uri si tipuri de materiale similare
*Prezenta oferta nu reprezinta un contract

Facilitati

1 garaj
Apometre
Contor căldură
Contor electric
Cadă
Nemobilat
Centrală imobil
Încălzire pardoseală
Pompă de căldură

Contact Agent

Ionut Anghel Agent Imobiliar
Ionut Anghel
Managing Partner
0720...click...