Dorobanti
Vila S+P+M | 9 camere, 4 bai | 300mp | ID:2761065

1,600,000 €
  • 9 camere
  • dormitoare
  • 4 bai
  • 412 mp construiti
  • 300 mp utili
  • 1S+P+M
  • 1921 finalizat

Amplasata pe o strada linistita in zona Dorobanti Capitale, aceasta vila S+P+M are 9 camere si 4 bai.
Suprafata totala desfasurata este de 412mp din care 300mp utili si 8mp terasa.
Subsolul are 41mp utili cu spatii tehnice si de depozitare.
Parterul are 123mp si este compus din 5 camere, terasa, 2 bai si bucatarie.
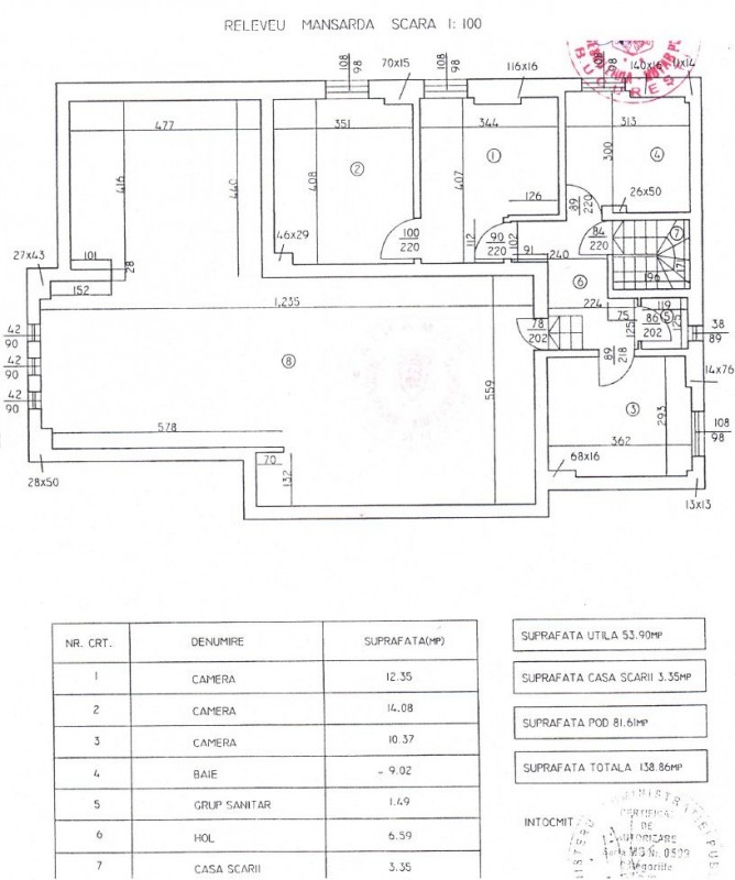
Mansarda are 138mp si are 3 camere, 2 bai si open space de 80mp.
Avand in vedere locatia exclusivista, este potrivita pentru resedinta sau activitati comerciale.

Facilitati

Apometre
Contor căldură
Contor electric
Contor gaz
Calorifere
Centrală imobil

Contact Agent

Ionut Anghel Agent Imobiliar
Ionut Anghel
Managing Partner
0720...click...