Aviatiei
Apartament cu 2 camere | terasa | complex rezidential | ID:3015631

289,000 € + TVA
  • 2 camere
  • 1 dormitoare
  • 1 bai
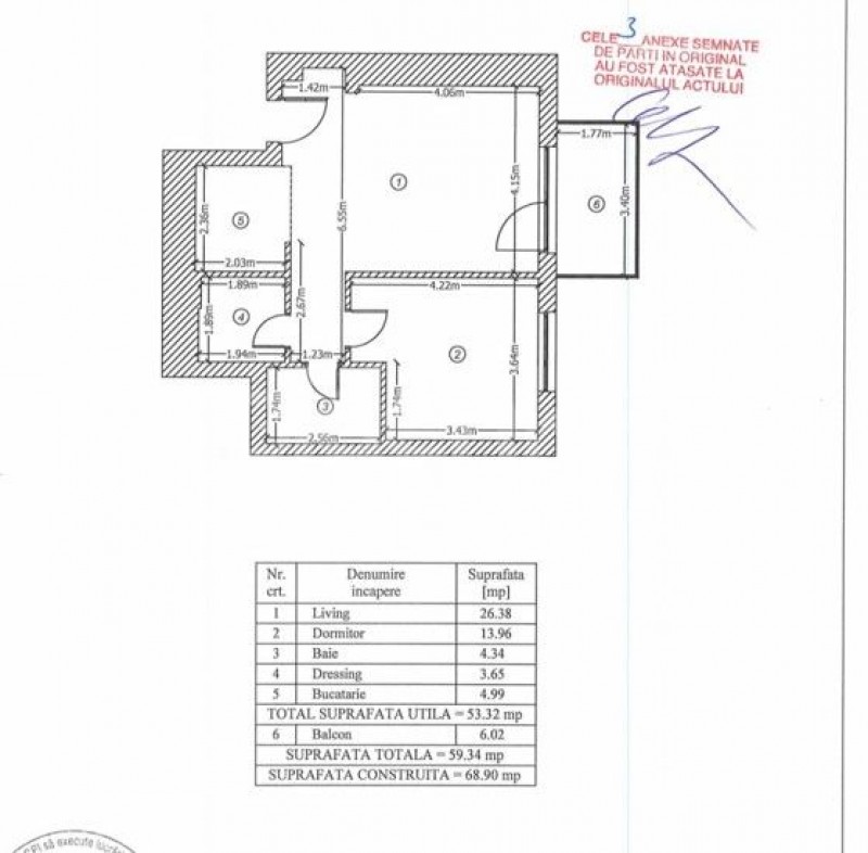
  • 70 mp construiti
  • 54 mp utili
  • 5 / 1S+P+12E
  • 2019 finalizat

Amplasat in zona Aviatiei, intr-un complex nou construit cu paza permanenta si supraveghere video, acest apartament cu 2 camere se afla la etajul 5 al unui imobil 2S+P+12 finalizat in 2021.
Are o suprafata construita de 70mp dintre care 54mp utili si 6mp terasa.
Este compus din living luminos cu zona de dining si iesire pe terasa, bucatarie deschisa/inchisa si complet echipata, dormitor si baie.
Dispune de 1 loc de parcare in garajul subteran la pretul de 30.000+TVA.
Datorita facilitatilor oferite si pozitionarea acestuia la cateva minute de Parcul Herastrau si zona de business Pipera - Barbu Vacarescu, acest apartament este ideal pentru rezidenta unei persoane sau a unui cuplu.

Facilitati

Bucătărie deschisă
Bucătărie mobilată
Bucătărie utilată
Apometre
Contor căldură
Contor electric
Aer condiționat
Aragaz
Cadă
Frigider
Hotă
Mașină spălat rufe
TV
Mobilat complet
Centrală imobil
Încălzire pardoseală

Contact Agent

Alina Radulescu Agent Imobiliar
Alina Radulescu
Senior Consultant
0733...click...